店舗詳細情報
| 物件番号 | 袋・F2-90 | ||
|---|---|---|---|
| 所在地 | 上田市中央2-10-10 | ||
| 名称 | ラカルトⅡ | ||
| 駅距離 | 上田駅から約1.0km | ||
| 契約種目 | 賃貸 | ||
| 賃料 | 140,000円/月(税込) | 管理費等 | 3,000円/月 |
| 敷金/保証金 | 2ヵ月/無 | 礼金 | 2ヵ月 |
| その他 | 多少の補修必要 費用は入居者負担 | ||
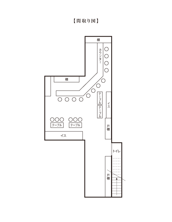
| 土地面積 | ー | 建物・店舗面積 | 2階建 1階 51.7㎡ |
| 築年数 | 27年 | 建物構造 | 軽量鉄骨造 |
| 駐車場 | 無 | 駐車場代 | 無 |
| 設備状況 | 電気(引き込み済み)/都市ガス/上下水道/トイレ(水洗)/冷暖房(有)/厨房(有)/倉庫(無) | ||
| 特記事項 | |||
| 備考 | |||
情報登録日:2025年10月10日
- 情報提供会社
- 〒386-0012 上田市中央2-10-8
小杦貞夫 Tel :22-2450 携帯:090-2219-0643
上田商工会議所
〒386-8522 長野県上田市大手一丁目10番22号
電話番号:0268-22-4500 FAX番号:0268-25-5577








